北京通州鲁能格拉斯小镇
●售楼处电话400-010-1266转8777
●提-前-来-电-预-约-登-记—售楼处1v1销售专业讲解〢一对一热情服务〢
●温馨提示:网上售楼中心〢欢迎来电咨询〢预约可享内部优惠〢匠心钜制恭迎品鉴〢
项目基本情况
「小区规模」:叠拼236套,合院264套
「占地面积」:3300亩
「容积率」:0.3
「总户数」:500户
「物业类型」:别墅
「层高」:3.3米,地下3.6米
「梯户」:1:2
「交付标准」:毛坯
「交房时间」:叠拼现房,合院2023年5月
「开发商」:鲁能集团
「物业」:鲁能物业管理,物业费6.19元/月/平米
「供暖」:分户式燃气炉供暖
「外销证」:有
【 在售产品信息】(目前在售六期产品)
大合院455㎡,花园赠送60㎡-130㎡,总价约2700万起
小合院388㎡,花园赠送40㎡-100㎡,总价约2200万起
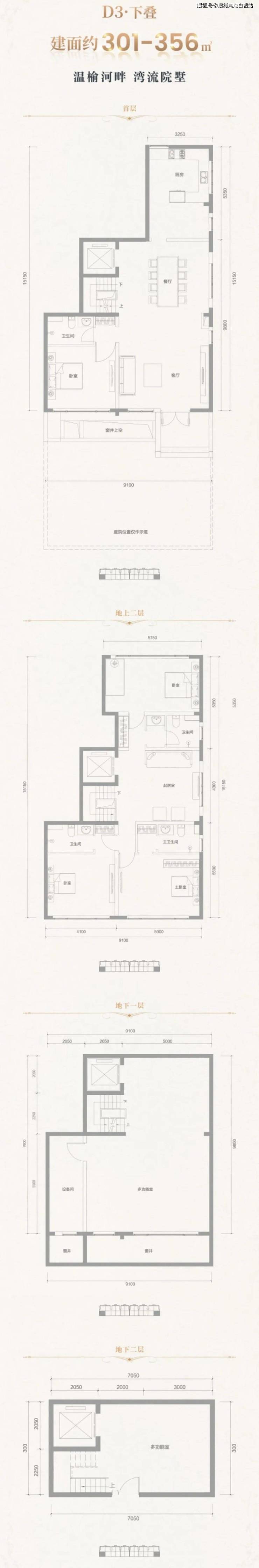
叠拼(上、下叠)248㎡-385㎡,总价约1400-2150万

项目优势
东五环低密大盘
项目位于温榆河畔,拥有3400亩的超大体量,1100亩欧洲园林成就了仅0.3的容积率和高达70%的绿化率,打造了一个醇正的欧式小镇,创造京城之最;

分区管理 独立物业 私密性强
项目分区规划分区管理,这样不仅保障了业主的私密性和舒适性,还可为业主提供更高质量的物业管理服务。物业公司是鲁能自有物业,是国家一级资质,金钥匙物业,有20多年的高端物业管理经验。

河湾独栋 墅超所值
经典的前二后三式设计,增加了地下室的通风和采光,同时还有大部分赠送面积。室内预留了私家电梯空间,方便主人上下楼。

纯粹河湾独栋区 诗情画意辐射全园
温榆河最美丽的支流老河湾蜿蜒穿过园区,造就了24万平米自然水域的环绕,同时还有300亩原生湿地及大量珍禽,千亩荷花塘、薰衣草花海等;这些不但调了居住、休闲、娱乐、商务办公等一系列功能需求外,还将自然资源与人造景观完美融合,造福业主。
项目配套

「交通」四高+四轨立体化交通:包括京平高速,机场第二高速,机场高速以及通燕高速的四条高速公路,以及壁富路,李天路,徐尹路以及格拉斯路的四轨交通网格
「医疗」潞河医院、东直门中医院东区、首都医科大学胸科肿瘤医院、首都儿科研究所、友谊医院通州院区、首都国际机场医院、安贞医院通州院区等
「教育」新英才国际学校、青苗双语幼儿园,ISB国际学校、爱迪国际学校、德威国际学校等8所国际学校,北京中加学校、北京市私立树人学校、德闳国际学校
「生活」
餐饮:俏江南、全聚德、泰姬楼、酷圣石、吉野家、麦当劳 、肯德基、赛百味、星巴克、达美乐、权金城、上岛咖啡等
商超:家乐福、华联商厦、蓝岛大厦通州店、贵友大厦通州店、国泰百货、BHG超市、国美电器、苏宁电器、荣祥广场、欧陆广场等
休闲:北京伯爵园高尔夫俱乐部、烟湖国际高尔夫乡村俱乐部、天竺乡村高尔夫俱乐部、华堂国际高尔夫俱乐部、北京通顺跑马场、格林马会等
「环境」东郊森林公园、生态体育公园,温榆河生态走廊等
项目楼栋&户型


合院产品
【北合院】
总面积:388 平米
花园赠送:40-80平左右
一层:客厅,餐厅,厨房,老人房,入户庭院
二层:2个卧室,2个露台(预计十几平)
三层:1个大主卧套房,1个露台(预计30平左右)
负一层:下沉庭园,休闲区,健身房,茶室等
负二层:影音室,红酒吧,储物间等;
预计总价约 2250万起

【南合院】
总面积:455 平米
花园赠送60-100平左右
一层:客厅,餐厅,厨房,老人房,入户庭院
二层:2个卧室,1个活动厅,2个露台(预计十几平)
三层:1个大主卧套房,1个露台(预计30平左右)
负一层:下沉庭园,家庭区,健身房,茶室等
负二层:影音室,红酒吧,储物间等;
预计总价约 2650万起

景观类独栋
总面积 560-600平米
花园赠送40-90平左右
一层:客厅,餐厅,厨房,老人房,入户庭院
二层:2个卧室,1个活动厅,2个露台(预计十几平)
三层:1个大主卧套房,1个露台(预计30平左右)
负一层:下沉庭园,家庭区,健身房,茶室等
负二层:影音室,红酒吧,储物间等;
预计总价约4100万起

2022年10月20日在大厦8楼会议室,召开了年中总结会议。在会上,张总代表公司的主要领导讲话。对上半年工作进行一次全面系统的总结,从而分析不足,进一步深化企业管理体制改革。
叠拼户型
6种,E为上叠,D为下叠






北京通州鲁能格拉斯小镇
●售楼处电话400-010-1266转8777
●提-前-来-电-预-约-登-记—售楼处1v1销售专业讲解〢一对一热情服务〢
●温馨提示:网上售楼中心〢欢迎来电咨询〢预约可享内部优惠〢匠心钜制恭迎品鉴〢